













Ponúkame na prenájom moderné kancelárske priestory v administratívnej budove situovanej na frekventovanej Ul. Svornosti, s výborným napojením na hlavné dopravné ťahy smerom z Bratislavy na Rovinku a Šamorín. Strategická poloha na výpadovke z mesta zabezpečuje komfortnú a rýchlu dostupnosť pre zamestnancov aj klientov.
Budova bola skolaudovaná v roku 2010 a disponuje celkovou úžitkovou plochou cca 1 840 m² rozdelenou do 5 podlaží. Na prízemí sa nachádzajú obchodné priestory, vyššie podlažia sú určené pre administratívu.
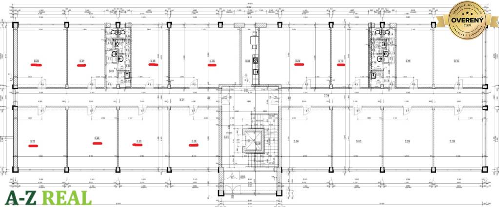
Na každom poschodí sa nachádzajú samostatné kancelárie o výmere približne 44 m2, 35 m2 a 23 m2
Podlažia sú prehľadne riešené s centrálnou chodbou, ktorá rozdeľuje jednotlivé kancelárske jednotky, na každom podlaží 2x sociálne zázemie (dámske a pánske toalety), plne vybavená kuchynka (vrátane mikrovlnnej rúry a umývačky riadu)
TECHNICKÝ ŠTANDARD BUDOVY:
- energetická trieda A+
- klimatizované priestory
- vykurovanie a chladenie prostredníctvom fancoil systému s tepelným čerpadlom
- izolačné trojsklá
- optický kábel a vysokorýchlostný internet
- 24/7 prístup do budovy
- kamerový systém a alarm
- možnosť napojenia na bezpečnostný pult
- moderný osobný výťah
- parkovisko pre cca 100 vozidiel
- 1 parkovacie miesto zdarma ku každej kancelárii (parkovanie pre klientov priamo pred budovou)
VOĽNE KANCELÁRIE od mája 2026 príp. dohoda:
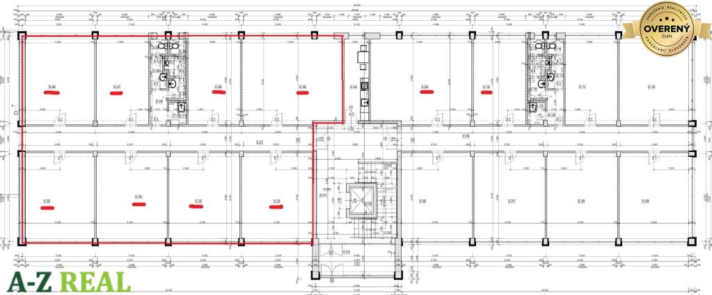
2. poschodie: 315 m2, možný prenájom po samostatných kanceláriách, alebo samostatný celok 252 m2,
kancelárie 5 x 32 m2, 2 x 45 m2, 3 x 24 m2 .
CENA: 9,-EUR/m2/mesiac + fix 2,- EUR/m2/mesiac energie a služby + 4 EUR/mesiac papier, mydlo, utierky na kanceláriu.
9,- €/m2/mes.
+ 2,00 € Energie
Slovensko
Bratislava - Podunajské Biskupice
Bratislava - Podunajské Biskupice
Ulica Svornosti
osobné
Kancelárie
prenájom
2
5
315 m²
315 m²
osobné
po rekonštrukcii
aktívne
optika
áno
vlastné vyhradené
iné
nezariadený
áno
áno
nie
áno
