


















Prenájom 4-izbový byt v novostavbe na Broskyňovej ulici v Starom Meste . Rozloha bytu je 136 m2 + terasa 28,44m2 .
Dispozičné riešenie bytu :
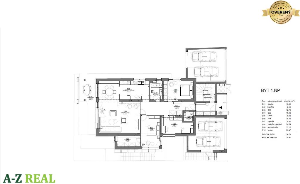
Dispozícia bytu pozostáva zo vstupnej chodby s walk-in šatníkom, kúpeľne s WC, samostatného WC, 3 spální a priestrannej obývačky prepojenej s kuchyňou a jedálenskou časťou. K bytu patrí tiež terasa 28,44 m2, ktorá je prístupná z obývacej izby a jedálne.
Bytový dom sa skladá zo štyroch poschodí, uvedený byt sa nachádza na treťom poschodí, vchod má na úrovni ulice.
Byt sa prenajíma nezariadený okrem vstavaných skríň, kuchyňa je vybavená elektrospotrebičmi/ práčka, sušička a vstavané kuchynské spotrebiče ako chladnička s mrazničkou, el. rúra, digestor, el. varná platňa, mikrovlná rúra a umývačka riadu.
Pokojná lokalita poskytuje príjemné bývanie na hradnom kopci s vynikajúcou dopravnou dostupnosťou do centra mesta, diaľničný obchvat ako aj plnú občiansku vybavenosť.
Cena prenájmu 3000 EUR/ mes + energie vo výške 250 EUR/mesiac. Byt je k dispozícii ihneď. K bytu prislúcha parkovacie miesto v garáži za 150 EUR/mesiac.
3.000,- €/mes.
+ 250,00 € Energie
Slovensko
Bratislava - Staré Mesto
Bratislava - Staré Mesto
Broskyňová
4-izbový byt
prenájom
3/vyššie poschodie
4
4
155 m²
136 m²
aktívne
áno
áno
18.44 m²
áno
tehla
nie
